为进一步提升人才培养质量,激发学生学习兴趣,提高学生的识图、绘图能力,12月1日,建筑工程学院在在应天教学楼606、608教室举办手工制图技能竞赛,23级各专业80多名学生参加了本次比赛。

此次比赛包括理论知识和手工绘图两部分。主要为了考察同学们对专业知识的理解和读图识图的能力,检验学生学习成果。比赛现场氛围浓厚,选手们严守纪律,争分夺秒,一丝不苟、认真严谨画好每一张图纸,表现出了良好的技能水平和精神风貌,经过1.5小时的激烈角逐,最终宁可等4名同学获得一等奖、黄陈等8名同学获二等奖、王月茹等12名同学获三等奖。

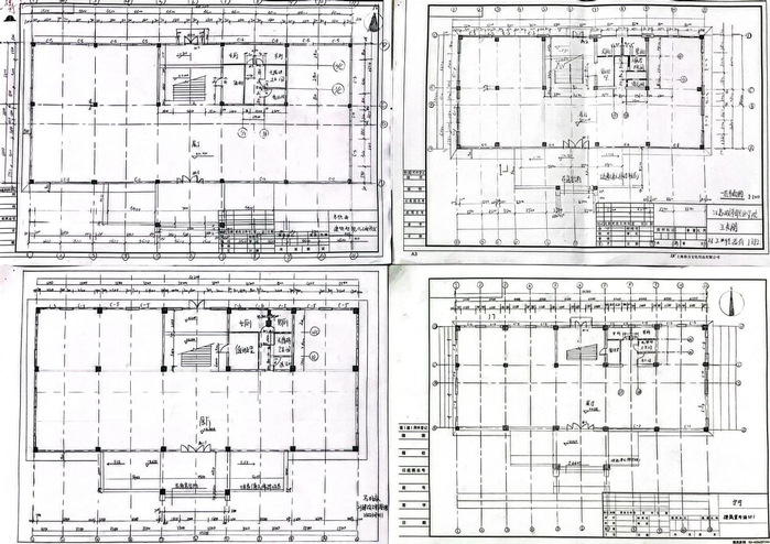
一等奖获奖作品

建德精工,匠心筑梦。此次竞赛为同学们提供了一个相互学习、展示自己、切磋图学技艺的舞台,不仅检验了学生的专业技能,拓展了学生思维,锻炼了实际操作能力,达到以赛促学的目的,同时通过比赛引领学生的职业技能提升,为后续省赛选拔优秀学生提供参考,对我院高素质技能型人才培养、教学质量水平提升具有积极的现实意义。
(文:江蕾、汪政/图:丁乾峰、申晨/审核:徐亚)